STAGフリー引き戸

デザインや、納まりに応じて1mm刻みで自由に設計製作可能な引き戸です。
商品の詳しい紹介(別ウィンドウが開きます)
特長
デザインや、納まりに応じて1mm刻みで自由に設計、製作できます。
キャビネット用の引き戸では、今までなかなかできなかったフリーサイズの設計を可能にした商品です。
アルミ枠扉から、木製扉まで自由に設計できます。
アウトセット、インセット、軽量タイプ、重量タイプの4種類からお選び下さい。
材質
レール:アルミニウム
枠材:アルミニウム
面材:強化ガラス
ガイドローラー:ポリアセタール
下部ローラー:ポリアセタール
仕上げ
レール:アルマイト処理シルバー
枠材:アルマイト処理シルバー
面材:透明強化ガラス+飛散防止フィルム(ルミクール1301)
ガイドローラー:黒
下部ローラー:黒
アウトセット / インセット


K(軽量)タイプ

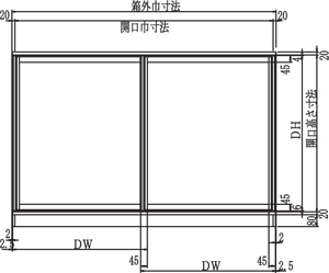
製作可能キャビネット外形寸法
最小:W750mm×H700mm
最大:W900mm×H2250mm
製作可能扉(1枚)寸法
最小:DW393mm×DH650mm
最大:DW468mm×DH2200mm
※扉重量が約15kg未満であれば、このサイズ以外も可能です。
※扉高さDHが1500mmを越える場合、中桟(幅15mm)を真ん中に1本入れます。
H(重量)タイプ

製作可能キャビネット外形寸法
最大:W900mm×H2400mm
製作可能扉(1枚)寸法
最大:DW468mm×DH2350mm
※扉重量が約30kg未満であれば、このサイズ以外も可能です。
※扉高さDHが1500mmを越える場合、中桟(幅15mm)を真ん中に1本入れます。
縦断面詳細図

鍵付きタイプ

施工例
