DTC スライド丁番 C80 シリーズ ダンパー内蔵スライド丁番
C80A676F 110°開き全カブセ
C80B676F 110°開き半カブセ
C80A677T0F 110°開き全カブセ
C80B677T0F 110°開き半カブセ
80T★0TQ-32A カム式調整座金(皿穴)
80T★2TQ2-32A カム式調整座金(ユーロビス)(★:座金厚み,数値:0,2,4)
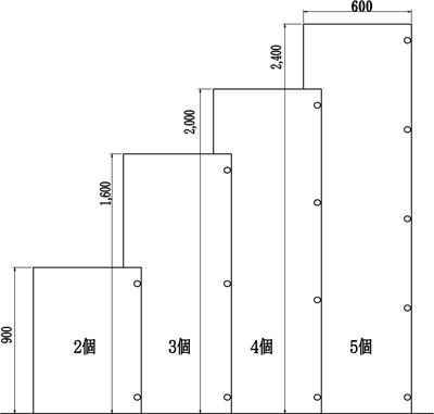
トビラの寸法と丁番の個数
調整
スムーズな扉の開閉を可能にした,新シリーズヒンジ! 扉の跳ね返りもなく,静かに扉が閉まります。
商品の詳しい紹介1 商品の詳しい紹介2 (別ウィンドウが開きます)C80A676 ダンパー内蔵スライド丁番 110°開き全カブセ(ワンタッチタイプ)

左/右調整:+4mm/-2mm
前/後調整:+3mm/-1mm
上下調整 :±2mm
品番
|


C80B676 ダンパー内蔵スライド丁番 110°開き半カブセ(ワンタッチタイプ)

左/右調整:+4mm/-2mm
前/後調整:+3mm/-1mm
上下調整 :±2mm
品番
|


C80A677T0 ダンパー内蔵スライド丁番 110°開き全カブセ(ワンタッチタイプ)

左/右調整:+4mm/-2mm
前/後調整:+3mm/-1mm
上下調整 :±2mm
品番
|


C80B677T0 ダンパー内蔵スライド丁番 110°開き半カブセ(ワンタッチタイプ)

左/右調整:+4mm/-2mm
前/後調整:+3mm/-1mm
上下調整 :±2mm
品番
|


80T00TQ-32A カム式調整座金(皿穴タイプ)

|

80T02TQ2-32A カム式調整座金(ユーロビスタイプ)

|

トビラの寸法と丁番の個数
扉のサイズに応じての,丁番必要個数を表示しています。材質,構造等により,通常より扉の重量が大きい場合は丁番を1個増やして下さい。 使用前に,実際に取付試験をして確認されることをおすすめいたします。 ※本図は,丁番使用数量の目安を示すものであり,丁番の性能を保証するものではありません。

調整
左右調整
本体前側の調整ネジを回すことで,外側に2mm,内側に4mm 動かすことができます。

前後調整
本体後側の調整カムを回すことで,前に3mm,後に1mm 動かすことができます。

上下調整
座金側の調整カムを回すことで,上に2mm,下に2mm 動かすことができます。
